Parcela residencial con proyecto y licencia para villa de lujo !. Ubicada en la prestigiosa avenida de Las Palmitas ,en la inigualable zona de La Caleta- Adeje .
Superficie de la parcela: 2.500 m2
Edificabilidad: 375,7 m2
Ocupación máxima: 15%
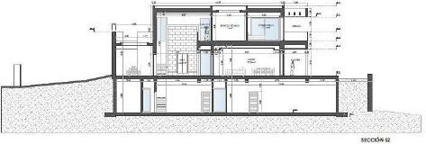
Altura: 2 plantas más sótano
Retranqueos linderos: 3 metros
Retranqueos viales: 5 metros
El proyecto de una villa de ensueño ,diseñada por el famoso arquitecto Antonino Jorge Mejias, cuenta con una piscina de 25 metros, jardines y terrazas espaciosas, un cine propio y un gimnasio en el sótano, además de una zona de spa, una sala de juegos, un apartamento independiente para el personal de servicio y mucho más.
Se han previsto dos modalidades de compra :
1)Para comprar el terreno: 2.650.000€ con licencia para construcción INMEDIATA.
2)Para compra con obra finalizada (según imágenes): 6.900.000€.
Elija su mejor opcion y no deje escapar esta excelente oportunidad de una vida de ensueño , con un entorno idilico y un excelente clima durante todo el año en la isla de Tenerife!.
